各市(州)农业(农牧)农村局:
为全力推进“鱼米之乡”创建工作,切实做好稻渔综合种养生产技术指导,现将《四川省稻渔综合种养技术指南》印发给你们,请结合实际贯彻执行。
四川省农业农村厅
2020年6月4日
四川省稻渔综合种养技术指南
根据《农业农村部办公厅关于印发〈稻渔综合种养生产技术指南〉的通知》(农办渔〔2020〕11号),结合我省实际,编制本指南。
一、概述
(一)基本概念
稻渔综合种养是通过对稻田实施工程化改造,构建稻渔共作轮作系统,通过规模开发、产业经营、标准生产、品牌运作,能实现水稻稳产、水产品增收、经济效益提高、农药化肥使用减量、农田生态系统功能明显改善,是一种生态循环农业发展模式。
(二)技术指标
稻渔综合种养应保证水稻稳产,技术指标应符合以下要求:
1.水稻单产:平原地区水稻产量每亩不低于500kg,丘陵山区水稻单产不低于当地水稻单作平均单产;
2.沟凼(暂养池)占比:沟凼占比不超过10%;
3.纯收入提升:与同等条件下水稻单作对比,单位面积纯收入平均提高50%以上;
4.化肥使用减量:与同等条件下水稻单作对比,单位面积化肥施用量平均减少30%以上;
5.农药使用减量:与同等条件下水稻单作对比,单位面积农药施用量平均减少30%以上;
6.渔用药物施用:无抗菌类和杀虫类渔用药物使用。
(三)适宜田块
用于稻渔综合种养的田块应具备水源好、排灌方便、田块平整、保水性好、不受洪旱灾害影响的良好条件。水源水质应符合GB11607的规定,养殖用水应符合NY5051的规定。
(四)主要模式
目前我省已形成稻-鱼、稻-虾、稻-蟹、稻-鳅、稻-鳖5类模式。
二、技术要点
(一)稻鱼综合种养
1.田间工程
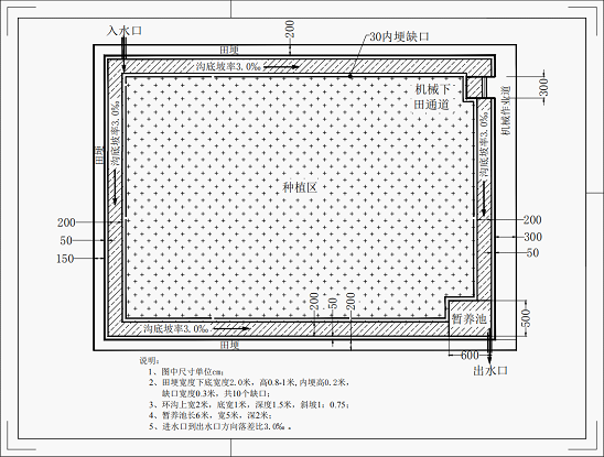
(1)进排水系统改造。对于新开挖的养鱼稻田,进排水口一般设在稻田的两对角,以保证水流畅通,进排水口大小根据稻田排水量而定。对于旧的养鱼稻田应进行检查,夯实进排水口,防止漏水。进排水口推荐采用三型聚丙烯管(简称PPR管,polypropylenerandom),排水管呈“L”型,一头埋于田块底部,另一头可取下,利用田内水压调节水位。进排水设施均需做好防逃,可用聚乙烯网或金属网套住管口,网眼规格小于田鱼规格,以不逃鱼、不阻水为原则。排水装置详见图1。
图1养鱼稻田排水装置示意图

或根据稻田形状和养殖布局预留溢洪排水口,口宽100cm,口埂高30~50cm,溢洪口个数可视田块大小而增加,同时安装防逃设施。
(2)沟凼整修及田埂加固。对于新开挖的养鱼稻田,在插秧之前开挖好鱼沟、鱼凼,并加固田埂,可在坡边和田埂种植三叶草等植物护坡稳坡。对于旧的养鱼稻田则需要对鱼凼进行整修。根据鱼沟、鱼凼开挖后地质情况,在保证生态化的前提下,确需防渗处理的,采取必要的防渗措施,保证鱼沟、鱼凼及田埂夯实不漏水。详见图2。
图2养鱼稻田田间工程示意图

①鱼沟:鱼沟约占整块田面积的5~7%。面积在10亩以上的稻田,在田内挖一条宽150~200cm环沟,主要分两部分,其中紧挨田埂30~50cm区域作为土埂护坡区,环沟深度为120~150cm,作为养殖区,环沟截面为梯形,上宽下窄,边坡比宜为1︰0.7左右;面积在10亩以下的稻田,在稻田的一侧开挖边沟,边沟距离田埂30~50cm,宽150~200cm,深80~120cm。所挖泥土用于加高加固四周田埂,加高50~70cm。
②鱼凼(暂养池):每块田可设置鱼凼1~2处,设置在排水口附近,与环沟/边沟相通。鱼凼面积占整块田面积的3~5%,池深200~250cm,形状以长方形为宜。
(3)农机通道。农机通道的设置应保证农用机械通行和鱼沟水体循环流动。农机通道推荐用1~2根Ф≥60cm、长250cm水泥涵管并列埋于鱼沟中并用田土填平,每块田设置农机通道1~2处。详见图3。
图3农机通道示意图

2.苗种暂养
可选择水源条件好的田块筑埂蓄水,作为临时性苗种培育区,用于强化培育苗种。培育至初夏,水稻插秧后,再将大规格苗种移至稻田中养殖。
(1)苗种培育区改造。对合适的田块进行必要的改造,主要包括加深鱼沟、鱼凼深度,加高加固田埂,调整进排水管高度,主要目的是确保蓄水量。
(2)苗种选择及放养。从正规苗种场选购活力好、体表完整、规格整齐的优质苗种。根据鱼种的规格确定放养密度。
(3)饵料投喂。正常情况下,按“四定”(定时、定质、定量、定位)投饵法投喂饵料,日投饵量为鱼体重量的2~3%,遵循“三看”(看鱼、看水、看天)原则,并根据实际情况灵活调整;在天气闷热或天气骤变、气温过低时,要减少或暂停投饵。
(4)日常管理。坚持每天早晚巡查,主要观察水色、水位和鱼的活动情况,及时加注新水。
3.鱼种放养
(1)放养品种。以鲤、鲫等品种为主,草鱼、鲢、鳙等鱼类为辅。
(2)放养方法。放养前,用生石灰制成石灰乳液按20kg/亩全田遍洒。待秧苗返青后,放养规格为100~150g/尾的鲤、鲫鱼种以每亩300~400尾为宜,每亩套养规格为400~500g/尾的草鱼、鲢或鳙分别10~15尾。放养前用3~4%的食盐水对苗种浸洗5~10分钟。在稻谷收割后,冬囤水田可加深水位,补投相当规格鱼种进行成鱼养殖。
(3)饲养管理。使用专用配合饲料,饲料安全限量应符合NY5072的规定。青饲料应新鲜、适口、营养丰富,无污染。饲料蛋白含量根据主养品种及规格蛋白需求量而定。日投饵量为鱼体重的2~3%。定点投喂,选在相对固定的鱼沟或鱼凼内,每天上、下午各投喂一次。做到定时、定质、定量、定位投喂。
(4)日常管理。经常巡田检查防逃设施、田埂有无漏洞,加强恶劣天气的巡察,及时排洪、捞渣,补修拦鱼设施和漏洞。对稻田的老鼠、蛇、黄鼠狼、水蜈蚣等敌害生物要及时清除、驱除。坚持预防为主,防治结合的原则,疫病发生时及时对田水消毒,并投喂药饵进行治疗,治疗使用的药物应执行NY5071的规定。提倡用中草药防病治病。
4.苗种及投入品运输
(1)苗种运输。运输前苗种需要停食一段时间,一般12~24小时左右。运输过程中保持溶氧充足,不使用麻醉剂;运输苗种密度适宜,防止密度过大造成挤压,引起外伤等;运输过程中使用的器械均进行消毒;注意观察鱼的活动情况,若有浮头、死亡等,需要及时换水。苗种放入稻田前注意调节水温,将运输水温与田间水温温差调节至2℃以内。
(2)饲料等渔需物资运输。需注意防水防曝晒,春季雨水较多,夏季气温炎热,运输和保存过程均注意防止饲料等渔需物资的劣变。
5.捕捞
(1)捕捞时间。根据鱼类生长及市场行情适时捕捞。冬闲水田和低洼田养殖的大规格鱼种可养至第二年插秧前捕捞。
(2)捕捞方式。捕鱼前应疏通鱼沟,缓慢放水,使鱼集中在鱼沟、鱼凼内,让鱼落网捕捉。
6.水稻种植(也适宜稻虾、稻蟹、稻鳅、稻鳖综合种养)
(1)稻种选择。选择当地主推的优质、抗病、抗倒伏的国标三级以上水稻审定品种。
(2)稻田水深。在水稻生长期,田面以上水位保持在5~15cm。
(3)水稻施肥。以生物有机肥为主,适当增施钾肥和锌肥,一次性施足基肥,后期看苗补肥。
(4)病害防治。选用低残留、低毒性的农药,结合太阳能杀虫灯、性诱剂等绿色防控技术防治水稻病害。农药剂型方面,应多选用水剂或油剂,少用或不用粉剂。根据安全农产品生产要求,符合GB/T8321等规定。
(二)稻虾综合种养(小龙虾)
1.田间工程
养殖小龙虾田埂应根据实际情况适当加宽,宽度保持在200cm左右。防逃设施方面需在田埂四周用塑料网布建防逃墙,下部埋入土中10~20cm,上部高出田埂50~60cm,每隔150cm用木桩或竹竿支撑固定,网布上部内侧缝上高度为30cm左右的钙塑板形成倒挂。防逃墙内壁无突出物,四角成圆弧形。在进排水口安装铁丝网或双层密网(20目)左右。沟、凼工程参照稻鱼综合种养模式。
2.水草种植(也适宜稻蟹综合种养)
养殖鱼沟在虾种投放前种植菹草、轮叶黑藻、伊乐藻、眼子菜、苦草等水生植物。以沉水性植物为主,挺水和浮水性植物为辅。种植成行或团,面积占10~40%,田埂及边坡也应有草。
3.苗种放养
(1)选择良种。苗种要求体表光洁、体质健壮、规格整齐、附肢齐全、健康无病。应尽量避免多年自繁自育、近亲繁殖的苗种,优先选择繁养分离且冬季根据天气水温情况适当投饵保肥的苗种,有条件的需要进行苗种检疫。
(2)适时放种。放虾前10~15天,每亩稻田用生石灰50kg,或选用其他药物,对稻田进行彻底消毒,杀灭野杂鱼类、螺类等敌害。春季放苗种宜在2~4月,密度一般控制在6000~8000尾/亩。秋季放苗宜在水稻收获前后的8~10月,放养大规格虾种或抱卵亲虾,初次养殖的每亩投放20~30kg,已养稻田每亩投放5~10kg,雌雄比(2~3):1。对于苗种自繁自育的稻田,虾苗太多的要及时出售或者分池养殖,虾苗较少的可以适当补充。
(3)水质调控。及时调水,水质一般以黄绿色或油青色为好,水体透明度以30~35cm为佳。若发现水质老化,可注入少量新水后,用生石灰加水全池均匀泼洒或使用有益微生物制剂及小球藻种调节水质。若水色清淡则应适时追肥。施肥要坚持“看水施肥、少量多次”的原则,以确保水质“肥、活、嫩、爽”。及时施肥,初春季节藻类繁殖比较慢,肥水相对困难。肥料可以选择发酵好的农家肥或生物有机肥,建议在晴天中午施用。
(4)饵料投喂。小龙虾日投饵量为虾体重的1~3%,每次投喂的饲料量,以2小时吃完为宜。超过2小时应减少投喂量。每天早上6~7时和下午5~6时,点状或线状投喂在平台或边坡处。一般在初春季节小龙虾体质较弱,可适当使用一些优质配合饲料,也可投喂诱食性好的鱼肉、蚯蚓等动物性饵料或高蛋白的豆浆,可适当提高投喂频率。如遇春季气候急剧变化导致应激时,可适度降低20~50%投喂量。同时管护和养护水草。
4.病害防治
(1)疾病预防措施。降低密度,适时通过分塘转移、捕大留小等措施,减少小龙虾存塘量,降低养殖密度。操作过程中应注意避免小龙虾受伤或引起应激反应。水中溶氧过低会产生氨氮、亚硝酸盐和硫化氢等有害物质,应注意加强增氧,避免因水质恶化引起的缺氧问题。要合理投喂优质饲料,提高免疫和抗应激能力。
(2)科学合理用药。注意药物适用对象、用量和配伍禁忌。尽量选择刺激性较小的外用药物,减少小龙虾的应激反应。不使用非法药品,尤其是杀青苔类产品更要慎重使用。
(3)重要疫病防控。春季天气不稳定,小龙虾易发生纤毛虫病、白斑综合症和细菌性肠炎。要坚持“防重于治”,做到“早发现、早诊断、早处置”,做好病虾隔离,切断传播途径。
5.苗种及投入品运输
(1)苗种运输。对于短途运输,建议使用可透水的塑料框装虾,并在框内设置密眼无结节网片将虾体与塑料框隔开以减少擦伤,每半小时喷水一次保持虾体湿润;小龙虾堆迭的高度不宜超过15cm。对于超过2小时的长途运输,使用可透水的塑料框时,小龙虾堆迭高度应控制在10cm以内,喷水时应添加抗应激物质,有条件的应在小龙虾上下两层覆盖少量水草帮助保湿透气。气温高时建议使用空调车运输,要注意温度的变化,防止小龙虾放养时因体温与水温差距过大产生温度应激反应造成大量损耗。
(2)饲料等渔需物资运输。做好投入品计划和运输安排,多预留出1~2周的使用期限进行采购。运输时,装车完毕后要防止烈日曝晒或天气突变。
6.捕捞
捕大留小,轮捕轮放。采用地笼捕捉为主,干塘捕捉为辅。将地笼每天晚上放入稻田中,地笼中可放入鱼肉等诱饵,清晨5~7时起笼,每隔3~5天移动一下位置。在捕捞过程中如果捕捞出黄鳝、泥鳅等严禁再次入田。
(三)稻蟹综合种养(中华绒螯蟹)
1.田间工程
(1)田埂加固。根据土质情况加固夯实养蟹稻田的田埂,田埂顶宽50~100cm,高50~80cm,内坡比为1∶1。沟、凼工程参照稻鱼综合种养模式。
(2)防逃设施建设。每个养殖单元在四周田埂上构筑防逃墙。防逃墙材料采用尼龙薄膜,薄膜高出地面50~60cm,每隔50~80cm用竹竿作桩。对角处设进排水口,进、排水管长出埂面30cm,将防逃网套住管口,防逃网目尺寸以养殖蟹苗/扣蟹不能通过为宜,同时可以防止杂鱼等进入稻田,与蟹争食。
2.扣蟹放养
(1)扣蟹暂养区改造。选择靠近养蟹稻田、水源条件好的冬闲池塘或预留一块稻田作为暂养区。暂养区沟凼深度要达到150cm,并预先移栽水草。水草首选当地常见种类,并注意疏密搭配,总面积占暂养区2/3左右。
(2)扣蟹选择。选择规格整齐、体质健壮、体色光泽、无病无伤、附肢齐全,特别是蟹足指尖无损伤,体表无寄生虫附着的扣蟹。
(3)放养密度。每年四月下旬,将苗种投放到生石灰消毒后的暂养区中,插秧后15~20天及时放入大田。每亩放养4kg规格为150~200只/kg的扣蟹,适当搭配规格为100~150g/尾的鲢、鳙3kg,禁止投放其他鱼种。
(4)饵料投喂。当水温超过8℃时候,要适时投喂精饲料,增强扣蟹的体质。根据水温和摄食情况,可按蟹体重0.5~3%投喂。河蟹投放稻田后,沟内投放适量水蚯蚓、田螺、河蚌。蟹苗至7月上旬期间主要投喂优质专用饲料;7月中旬至8月中旬主要投喂青饲料,兼小鱼虾、田螺、河蚌等;8月中旬后主要投喂高蛋白精饲料,同时搭配煮熟的玉米、高粱、红薯、南瓜等。
(5)水质调控。及时调水,选择盐度2‰以下、pH值在7.8~8.5之间的井水、河水或水库蓄水。注意换水时间,确保水温变化幅度不大。使用井水时,一定要注意应充分曝气和提高水温。
(6)日常管理。坚持每天早晚巡查,主要观察扣蟹摄食、活动、蜕壳、水质变化等情况,发现异常及时采取措施。
3.病害防治
(1)降低密度。待春季气温回暖,需及时分塘,降低密度。扣蟹暂养至水稻插秧后应及时起捕投放,避免暂养区内密度过高诱发疾病。
(2)增加溶氧。暂养区可根据实际条件增加微孔增氧等设施,提高水体溶解氧含量。
(3)合理投喂。根据养殖密度适量投喂,既保证饵料充足,又要防止过多投喂影响水质。
4.苗种及投入品运输
(1)苗种运输。运输期间要注意选择合适天气及保持适宜温度,尤其是在不同地方购买蟹种需长途运输,更要注意运输中的温度,避免温差过大。
(2)饲料等渔需物资运输。应早做准备,预留1~2周的使用期限进行采购。运输时注意消毒,必要时选用84消毒液对饲料等的外包装、渔业机械、网具和车辆进行消毒,对特殊动保产品外包装选用75%酒精进行抹擦清洁消毒。
5.捕捞
性成熟季节,利用蟹上岸习性徒手捕捉;或待傍晚成蟹绕沟爬行时用丝网或地笼横拉鱼沟张网捕捉;或放干田水捕捉。
(四)稻鳅综合种养
1.田间工程
一般采用“边沟+鱼凼”形式,稻田中间可开挖十字沟。进排水口是泥鳅可能逃跑的主要部位,必须做好防逃措施。沟凼的开挖,主要根据稻田放养泥鳅的规格和数量以及预期产量而定,要做到暂养沟(池)、鱼沟、田间沟沟沟相通,“三沟”面积以占种养总面积的5%左右为宜。稻田养鳅成功与否的关键之一是能否做好防逃工作,除进排水口外,应在埂基四周埋设防逃网片,可采用20~25目的聚乙烯网片,埋入土下15~20cm,防止泥鳅钻洞逃逸。田埂及进排水口工程与稻鱼综合种养相同。
2.泥鳅放养
(1)放养密度。秧苗移栽7~10天后,放养泥鳅苗种,要求体质健壮,无病无伤。每亩放养40kg规格为250~350尾/kg的鳅苗,适当搭配规格为100~150g/尾的鲢、鳙。
(2)饲料投喂。要坚持“四定”原则,每天2次,早上9时和下午5时左右各一次,饲料投在鱼沟中设置的食台上,具体投喂量根据天气、温度、水质、泥鳅活动情况进行适时调整。配合饲料投喂量以泥鳅总体重的1.5~3.5%为宜,可上午投喂日饵量的40%,下午投喂日饵量的60%。
(3)密度控制。随着泥鳅不断生长,总的原则是尽量降低泥鳅养殖密度,应根据市场行情,不断捕捞出售,养殖密度不超过1~2万尾/亩。
(4)水质调控。春季天气不稳定,导致水温变化较大,水质调控非常关键。随着天气渐暖,温度回升,要注意控制水位,保持田面水位30~40cm,鱼沟水位130~140cm。及时施肥,有机肥料必须充分发酵和消毒,做到少施、匀施、勤施。晴天上午施肥好,不在阴天、雨天施肥。一般每亩可施充分发酵有机肥30~50kg。
(5)日常管理。每天坚持巡田,注意泥鳅的活动、摄食等情况,及时捞取病死泥鳅,防止其腐烂影响稻田水质,传染病害。观察防逃网外有无泥鳅外逃,发现后要及时检查、修复防逃网。根据剩饵情况调整下次投饵量。
3.病害防治
(1)疾病预防措施。尽量降低存塘泥鳅养殖密度,如果稻田水质条件不好,又没有增氧设备,应控制密度在0.5万尾/亩以下。配备有增氧设备的稻田,应及时开启增氧机,每天开机时间4小时以上。合理投喂饲料,投饵1小时后及时观察饲料被泥鳅摄食情况,如有饲料剩余,及时调减饲料投喂量,防止剩余饲料影响水质。
(2)科学合理用药。应坚持预防为主原则。一般稻田养殖泥鳅,较少发生病害,但春季仍是病害易发季节。可半月对稻田水体进行一次消毒,或在饲料中拌喂微生态制剂,增强泥鳅抗病能力。
(3)防治鸟类敌害。泥鳅是许多鸟类的天然饵料,稻田水浅,泥鳅易被捕食,若鸟类数量较大,可将稻田浅水区域的泥鳅捕食殆尽,造成严重经济损失,因此要特别注意防范。
4.苗种及投入品运输
(1)做好苗种运输。插秧前后应及时采购苗种,提倡带水操作运输,使泥鳅应激反应降到最低。使用泥鳅专用箱运输,每只箱子存放泥鳅苗种10kg,加水8~10kg。长途运输的苗种经过停食锻炼后再运输,过程中保持水温稳定,溶氧充足。
(2)做好饲料等渔需物资运输。提前做好饲料等渔需物资的运输计划,注意防水、防湿。可选用84消毒液对饲料的外包装、渔业机械、网具和车辆等进行喷雾消毒。
5.捕捞
(1)诱饵笼捕。在地笼中放入泥鳅喜食的饵料,如动物内脏、蚯蚓、炒香的麦麸、米糠等,待大量泥鳅进入地笼中时起笼即可。
(2)抄网捕捞。在割稻前,当田水放干后,泥鳅聚集到鱼凼中时用抄网捕捞,钻入泥中的泥鳅用铁锹挖出。
(五)稻鳖综合种养(中华鳖)
1.田间工程
(1)开挖沟凼。沟沿田埂内侧50~60cm处开挖,宽300~500cm,深100~150cm。凼位置紧靠进水口的田角处或一侧,形状呈矩形,深度100~120cm,四周用密网或聚氯乙烯(PVC)塑料设置围拦,围栏向凼内侧稍倾斜。凼埂应加固,并高出稻田平面10~20cm。防逃设施可选用砖墙、铝塑板、彩钢板等材质,将鱼沟外侧围拦,高出埂面50~60cm,围栏竖直埋入土中15~20cm,四角处围成弧形。
(2)搭建晒台、食台。根据中华鳖的习性,需在鱼沟中每隔10m左右放置一块竹板或木板作为中华鳖的晒台。食台宽60~80cm,长150~180cm,一端固定在田埂上,另一端没入水下10~15cm,坡度约为15°。食台数量根据田块大小而定,一般安放2~4个食台。
2.苗种放养
(1)苗种选择。可选择国家审定新品种或适合本地区养殖、抗病力强、生长较快、受市场欢迎的中华鳖优良品种。
(2)苗种放养。一般在5月上、中旬开始放养,如果放养时水稻还未插秧或返青,可先放入沟凼,之后再移至大田。在中华鳖投放前10~15天,用生石灰化水按100kg/亩趁热泼洒,也可用1%聚维酮碘溶液或0.3mg/m3强氯精替代消毒。中华鳖放入前先用15~20mg/L的高锰酸钾溶液浸浴15分钟。每亩放养规格为400~600g/只的中华鳖100~120只,或规格为150~300g/只的中华鳖200~300只,适当搭配规格为100~150g/尾的草鱼、鲢、鳙3kg。
(3)饵料投喂。天然饵料一般不能满足鳖的生长,可投喂人工配合饲料。水温低于22℃时不应投喂饲料,水温达到并稳定在28℃,不超过35℃时,要加大投喂量。日投喂量占体重的2~3%,小规格鳖种适当加大投喂量。日投喂两次,上、下午各一次。
3.养殖管理
(1)水质调控。随着气温回暖,当水体温度升至20℃左右时,多数中华鳖开始苏醒,应及时换水消毒。
(2)饵料投喂。对于刚越冬苏醒的中华鳖,重在恢复体质。待水温维持在22℃以上时,投喂少量营养丰富、易于消化吸收的新鲜动物性为主的饵料或蛋白质含量45%以上的中华鳖人工配合饲料。每千克饵料中可加入复合维生素2g或适宜的免疫增强剂,以提高机体抗病能力。投喂量不宜过大,投喂次数也不宜过多,待气温基本稳定和鳖身体机能恢复到正常的状态,再按正常的喂养方式和投喂量进行喂养。
(3)日常管理。应定时巡查,每天两次以上,测量池水温度,观察中华鳖活动情况,保持沟凼水深130~150cm。
4.病害防治
春季天气不稳定,刚苏醒的中华鳖极易被病原菌侵染,爆发腐皮病、水霉病、氨中毒症、暴发性出血症等。日常管理中必须坚持“防重于治”,做到“早发现、早诊断、早处置”,做好病鳖隔离,切断传播途径,从根本上解决病害的流行,避免经济损失。
5.捕捞
在10月中下旬至11月开始捕捞成鳖。未达到上市规格的集中到暂养池中作为来年鳖种继续养殖。一般采用灯光诱捕和干塘捉捕的方式进行捕捞。

